福岡県福岡市西区愛宕南2丁目
福岡市空港線「室見」駅 徒歩10分
【内覧希望や御質問など御座いましたら当店まで。ご連絡お待ちしております】

【内覧希望や御質問など御座いましたら当店まで。ご連絡お待ちしております】







宅配ボックス


駐輪場
1 2
※現況と相違ある場合、現況を優先します。
福岡県福岡市西区愛宕南2丁目
福岡市空港線「室見」駅 徒歩10分
| 建物構造 | 鉄筋コンクリート造 |
|---|---|
| 現況 | 空室 |
| 総戸数 | 101戸 |
| 所在階/階数 | 3階/8階建 |
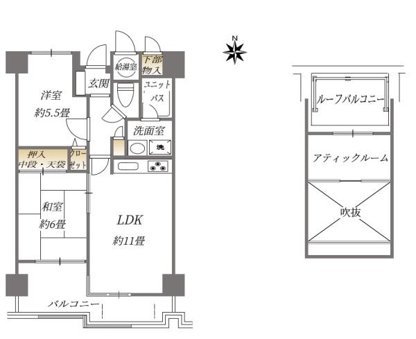
| 間取り | 2LDK(LDK11帖 和6帖 洋5.5帖) |
| 専有面積 | 壁芯:51.3m2(15.51坪) |
| 専用庭 | - |
| バルコニー | 9.19m2 |
| テラス | - |
| 築年月 | 1990年3月 |
| 部屋向き | 南 |
| 駐車場 | 無 |
| バイク置場 | - |
| 駐輪場 | - |
| 土地権利 | 所有権 |
| 借地期間 | - |
| 地代 | - |
| 権利金/保証金 | -/- |
| 管理費 | 7,100円 |
|---|---|
| 修繕積立金 | 9,280円 |
| 管理方式 | 全部委託 |
| 管理形態 | 日勤 |
| 管理会社 | 大和ライフネクスト株式会社 |
| 施工会社 | 前宮建設 |
| 国土法届出 | 不要 |
| 手付金保証 | - |
| フラット利用 | - |
| 学校区 |
姪浜小学校(1359m) 内浜中学校(1585m) |
| 法令に基づく その他制限 |
- |
| 備考 | 【物件周辺情報】〇福岡銀行姪浜店 約900m〇福岡愛宕郵便局 約700m〇マックスバリュエクスプレス姪浜駅南1丁目 約750m〇ドラッグ新生堂室見駅店 約750m〇よしとみ内科クリニック 約650m■ご自宅や最寄駅での待ち合わせ等の送迎サービス実施中■頭金0円住宅ローン金利優遇MAX・おまとめローン個別相談会実施中■火災保険・引越し・リフォーム等々の面倒な諸手続き全てお任せください■住宅ローン複数行一括申込可能(弊社ではローン代行0円) |
| 取引態様 | 仲介 |
| 引渡時期 | 相談 |
| 問い合せ番号 | 172801-1035 |
| 物件更新日 | 2026年1月27日 |
2026年2月10日
お問い合わせ番号をお伝えいただくとスムーズです。
この物件のお問い合わせ番号は【172801-1035】です。

アルフィーネ大野城アクアサイド
福岡県大野城市筒井5丁目
4LDK(100.57m2)
3,480万円

ライオンズマンション姪浜
福岡県福岡市西区愛宕南2丁目
2DK(45.36m2)
1,980万円

グランドニューガイア福津中央
福岡県福津市中央5丁目
4LDK(80.77m2)
2,980万円

J'sMANSION花瀬ヒルズ
福岡県飯塚市花瀬
3SLDK(76m2)
1,150万円

ヴィルヌーブ大池D棟
福岡県福岡市南区大池2丁目
3LDK(77.4m2)
2,699万円

東峰マンション竹下
福岡県福岡市博多区那珂1丁目
3LDK(68.37m2)
2,180万円

エバーライフ久留米南
福岡県久留米市野中町
3LDK(69.24m2)
2,200万円

ザ・プレースひびきのウエスト
福岡県北九州市八幡西区本城学研台3丁目
3LDK(69.91m2)
2,000万円

サンライフ小郡コートビレッジK棟
福岡県小郡市小郡
3LDK(79.29m2)
998万円

ロワールマンション室見川
福岡県福岡市西区愛宕南2丁目
2LDK(51.3m2)
1,630万円
物件価格にて、消費税がかかる場合は税込み価格を表示しています。